Wildflower

Commercial/Residence

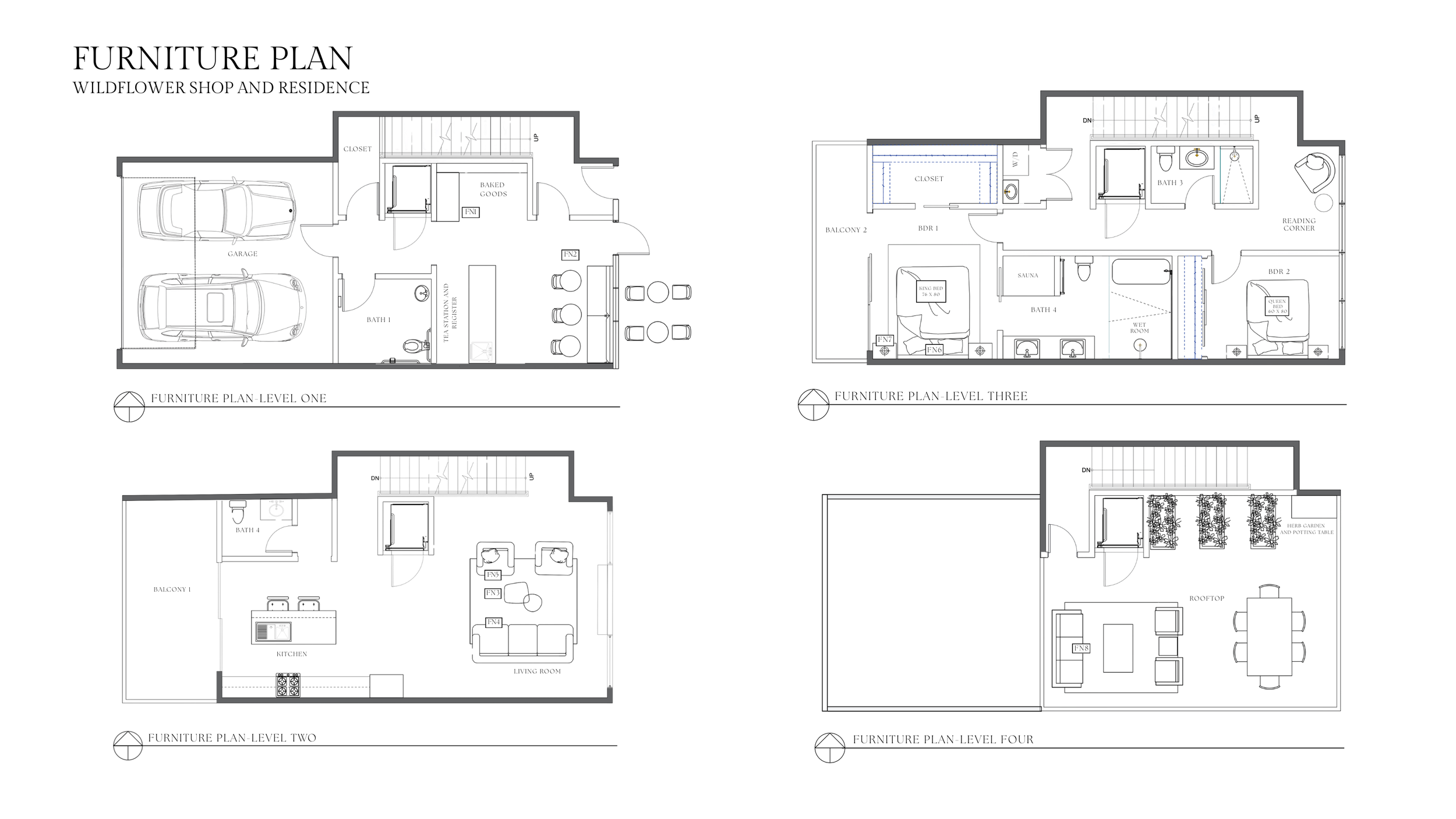
Set in Napa Valley, California, this mixed‑use project centers on wellness‑focused construction. Each finish and furnishing was selected for its low to zero VOC components, supporting a fresh and breathable environment. The space blends natural materials and soft, earthy details to create a peaceful place for both community and home life. This project was an extensive exercise in material selection. Every material was chosen with health and holistic living in mind.

Previous
Previous

Desert House

Next
Next

La Palma